BAMYAN CULTURAL CENTER

 

The Eternal Presence of Absence

 

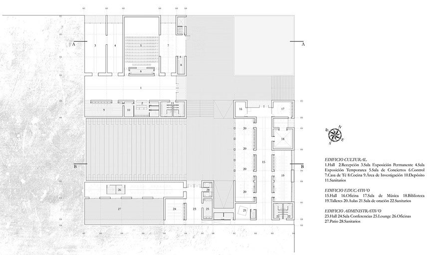
The Bamiyan Cultural Center seeks to create a new vital center for communicating and sharing ideas. Therefore, our proposal tries to create not an object-building but rather a meeting place; a system of spaces where the impressive landscape of the Buddha Cliffs intertwine with the rich cultural activities that the center will foster. The Bamiyan Cultural Center is not ‘built’ but rather ‘discovered’ by carving it out of the ground. This primordial architectural strategy creates a minimal negative impact building that fully integrates into the landscapes, takes advantage of the thermal inertia and insulation of the ground and acknowledges the local building traditions.

 

Silence and the experience of time

 

The spaces of the Cultural Center are designed to respond to the richness of Bamiyan’s culture and to give a sense of history by making time tangible. Although architecture cannot deal with time directly it can nonetheless affect human perception of it. The skylights of the cultural center create lines of light that move following the path of the sun through the sky making visible the passage of time. The interior spaces of the center completely devoid of detail or ornament, by their sheer austerity favor a contemplative and reflexive attitude. The vaulted spaces of the exhibition area are oriented in line with the axis of the Western Buddha Niche and frame the views towards it giving a dramatic historic backdrop to the contemporary cultural manifestations. This makes visible the contrast and continuity between afghan pass and present. The performance hall has a diagonal opening that is oriented towards the Eastern Buddha niche making it present and integrating it with the performances. The visual silence of the interior and exterior spaces, the rich presence of natural light, and the integration of the cultural landscape of Bamiyan, all work to create a space that gives a deep sense of history.